80 Base Line Road W, London, Ontario N6J 1V2 (29444312) – Team Ravi Bedi


LOADING

80 Base Line Road W London, Ontario N6J 1V2

2450 sqft
Central Air Conditioning Forced Air

$800,000

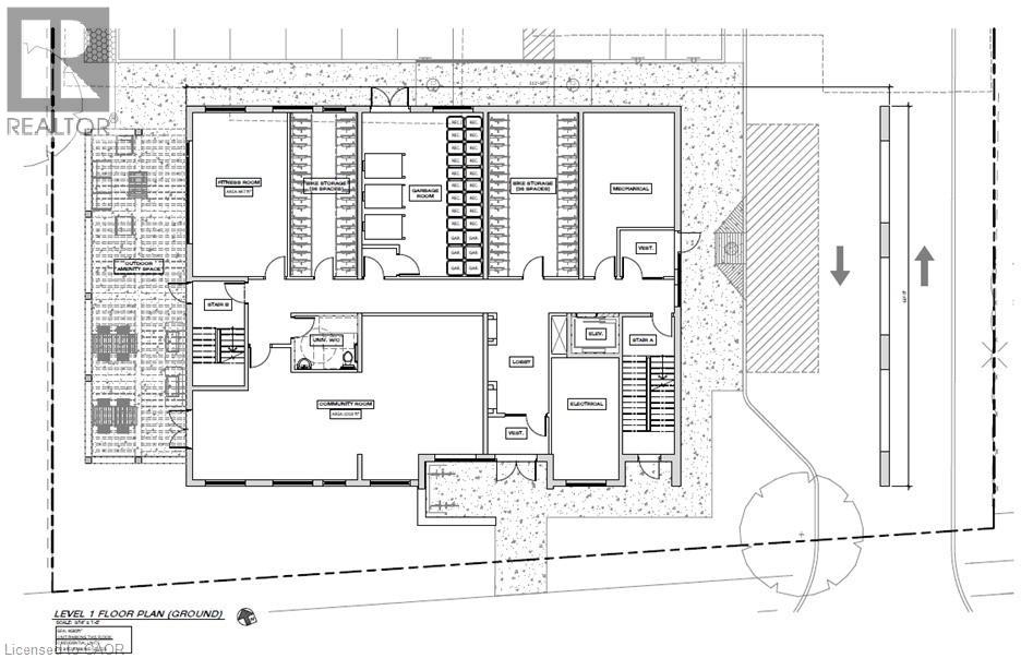
Opportunity knocks. Currently configured as four units converted from a single-family home and zoned R9-7, this property offers exceptional redevelopment and value-add potential. This prime multi-residential development site presents a rare and flexible acquisition opportunity for qualified buyers. The half-acre site is fully rezoned for an 8-storey, 77-unit apartment building, allowing the next owner to proceed directly to the draft Site Plan Approval (SPA) phase, while the existing tenancy provides interim income to help offset holding costs. Ideally located steps from Wortley Village in London, the property benefits from excellent access to transit, shops, restaurants, and green space, making it highly attractive to future renters. Existing zoning permits up to 12 storeys with potential for additional density through underground parking, and there is also the ability to develop 10-plex buildings depending on the buyer’s strategy. This property must be sold together with the neighbouring bungalow at 82 Baseline Road, creating a larger development assembly and enhancing overall redevelopment potential, making this a rare near-turnkey opportunity in a high-demand location with multiple exit strategies. (id:50617)

Property Details

MLS® Number 40809312
Property Type Multi-family
Amenities Near By Golf Nearby, Hospital, Park, Place Of Worship, Playground, Public Transit, Schools, Shopping
Community Features Quiet Area, School Bus
Features Crushed Stone Driveway
Parking Space Total 5

Building

Basement Development Unfinished
Basement Type Partial (unfinished)
Constructed Date 1955
Cooling Type Central Air Conditioning
Exterior Finish Brick
Heating Fuel Natural Gas
Heating Type Forced Air
Stories Total 2
Size Interior 2450 Sqft
Type Fourplex
Utility Water Municipal Water

Parking

Attached Garage

Land

Access Type Highway Access
Acreage No
Fence Type Fence
Land Amenities Golf Nearby, Hospital, Park, Place Of Worship, Playground, Public Transit, Schools, Shopping
Sewer Municipal Sewage System
Size Depth 142 Ft
Size Frontage 75 Ft
Size Total Text Under 1/2 Acre
Zoning Description R9-7

https://www.realtor.ca/real-estate/29444312/80-base-line-road-w-london

Interested?

Contact us for more information


Generating Captcha

Your Favourites

 

No Favourites Found