302 – 35-39 Main Street, Cambridge, Ontario N1R 1V6 (29186905) – Team Ravi Bedi


LOADING

302 - 35-39 Main Street Cambridge, Ontario N1R 1V6

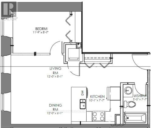
1 Bedroom 1 Bathroom 0 - 699 sqft
Central Air Conditioning Forced Air

$1,995 Monthly

Welcome to Granite Lofts, located at 35 Main Street in the heart of historic downtown Galt, Cambridge. This unique heritage building blends early 20th-century industrial charm with modern loft-style living. Step inside to soaring ceilings, exposed brick and beam architecture, oversized windows, and open-concept layouts that flood each unit with natural light. Carefully restored and thoughtfully updated, these lofts feature modern kitchens and contemporary finishes that highlight the character of the original structure. Located just steps from the Grand River, trendy cafes, art galleries, and boutique shopping, Granite Lofts offers both convenience and culture. With easy access to trails, transit, and key commuting routes, this location is ideal for professionals, creatives, and those looking for a vibrant urban lifestyle with a touch of history. Parking passes to be purchased through the City of Cambridge for any of their downtown lots. Authentic loft-style units with exposed brick and timber beams. One bedroom, open-concept layouts with high ceilings and large windows. Modern kitchens with quartz countertops and stainless-steel appliances. In-suite laundry and secure building access. Walkable to shops, restaurants, and the Gaslight District. Easy access to Highway 401 and public transit (id:50617)

Property Details

MLS® Number X12633940
Property Type Single Family
Amenities Near By Golf Nearby, Park, Public Transit, Schools
Features Level Lot, Carpet Free, In Suite Laundry

Building

Bathroom Total 1
Bedrooms Above Ground 1
Bedrooms Total 1
Amenities Separate Electricity Meters
Appliances Water Meter
Basement Type None
Cooling Type Central Air Conditioning
Exterior Finish Brick
Fire Protection Smoke Detectors
Flooring Type Hardwood
Foundation Type Concrete
Heating Fuel Natural Gas
Heating Type Forced Air
Size Interior 0 - 699 Sqft
Type Other
Utility Water Municipal Water

Parking

No Garage
Street

Land

Acreage No
Land Amenities Golf Nearby, Park, Public Transit, Schools
Sewer Sanitary Sewer

Rooms

Level Type Dimensions
Main Level Bedroom Measurements not available
Main Level Kitchen Measurements not available
Main Level Living Room Measurements not available
Main Level Bathroom Measurements not available

Utilities

Sewer Installed

https://www.realtor.ca/real-estate/29186905/302-35-39-main-street-cambridge

Interested?

Contact us for more information


Generating Captcha

Your Favourites

 

No Favourites Found